案例1
某壓縮機年度大檢修時,更換新轉子后,在正常工作條件下運行時,各項工藝參數與檢修前相同,但軸振動的振幅逐漸增大,最終達到設計值的3倍左右,機組處于臨界狀態運行。
壓縮機發生異常振動時,轉子兩端軸承處的徑向振動較大,振動信號的時域波形及頻譜如圖1所示。同時,其相位不穩定,軸心軌跡波動較大;若降低工作轉速,異常振動明顯減低。

圖1 異常振動時的波形與頻譜
診斷意見:根據壓縮機發生異常振動的現象和規律,初步懷疑是由于轉子熱套配合件過盈不足造成的。
由于是新更換的轉子,若真的發生了過盈不足故障,處理比較困難,為慎重起見,必須排除其他因素的影響。首先排除不平衡的可能性,檢查轉子動平衡記錄和合格證,對照頻譜圖,可以排除這個因素的影響。對照頻譜圖和振動特征,參考工藝參數變化情況,又逐項排除了其他原因。最終確認振動是由于轉子的制造缺陷,葉輪與轉軸配合面過盈不足造成的,需停機拆卸轉子處理。
生產驗證:停機后檢查轉子動平衡,未發現問題。進一步拆卸轉子,發現葉輪可以很容易地從轉軸上拆卸下來,從而證實了轉軸與葉輪配合面過盈量不足。更換合格的轉子后,在原先的工藝條件下機組運行正常。
案例2
牽引電動機主動齒輪系內燃機車運行部傳遞動力的關鍵部件之一,它與電動機軸的裝配形式采用的是圓錐軸過盈配合,在機車滿負荷運行時,其承擔著列車大約410kW的牽引力。如果機車在運用當中出現主動齒輪松脫或崩裂,特別是機車在低速重載牽引工況下,將導致電動機繞組燒損放炮,嚴重影響著機車的行車安全。該廠自試修機車以來,主動齒輪廠外松脫、崩裂現象時有發生,這不僅給工廠造成較大的經濟損失,而且嚴重影響著工廠的質量信譽,也給用戶帶來諸多不便。
診斷意見:針對上述質量事故,經技術分析,發現造成主齒松脫有以下幾種原因:
(1)齒輪和電動機軸的接觸面積不夠(<75%)。
(2)鎖緊螺母沒有鎖緊。
(3)鎖緊墊片有缺陷。
(4)齒輪熱套時 1.5~1.7mm 的軸向壓入量不夠。經過現場檢查、試驗進一步發現,出現齒輪松脫的主要原因是由于齒輪加熱時間的控制存在缺陷,造成1.5~1.7mm的軸向壓入量不足。
該廠自試修東風型機車以來,主動齒輪熱套裝配一直采用感應加熱,通過控制加熱時間來控制軸向壓入量(即時間控制法)。雖然感應加熱器加熱比傳統的油浴加熱效率高,但它受網絡電壓波動、操作工的熟練程度等諸多不穩定因素的影響,容易造成即使在相同的加熱時間下,主動齒輪內孔的膨脹量也不一致,從而導致套裝后的主動齒輪相對電動機軸的軸向壓入量不能準確、穩定地控制在1.5~1.7mm范圍內。
處理措施:為了克服上述時間控制法的缺陷,在不增加工人勞動強度的條件下,將軸向壓入量在一次套裝過程中控制在1.5~1.7mm范圍內。經過生產現場調查和技術可行性分析,決定采用工裝限位法替代現行的時間控制法。
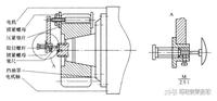
利用主動齒輪齒槽和兩端面固定的工裝,將1.5~1.7mm的軸向壓入量通過塞尺在主動齒輪冷態套裝時預先設定。熱態套裝時利用工裝上限位螺桿限位作用,將軸向壓入尺寸準確控制在塞尺預先設定的長度之內。
圖2為牽引電動機主動齒輪熱套限位工裝示意圖。

圖2 熱套限位工裝示意圖
生產驗證:
(1)直接限位工裝使用后,現場套裝情況良好,返工率僅為2%,1.5~1.7mm的軸向壓入量均能嚴格保證;
(2)據各鐵路局、機務段反饋的信息知, 自運用限位工裝控制主動齒輪熱套質量的出廠機車,在運用當中再沒有出現一例主齒松脫、崩裂事故。
客服熱線:











